
Pozicija
Prvi
Petosoban
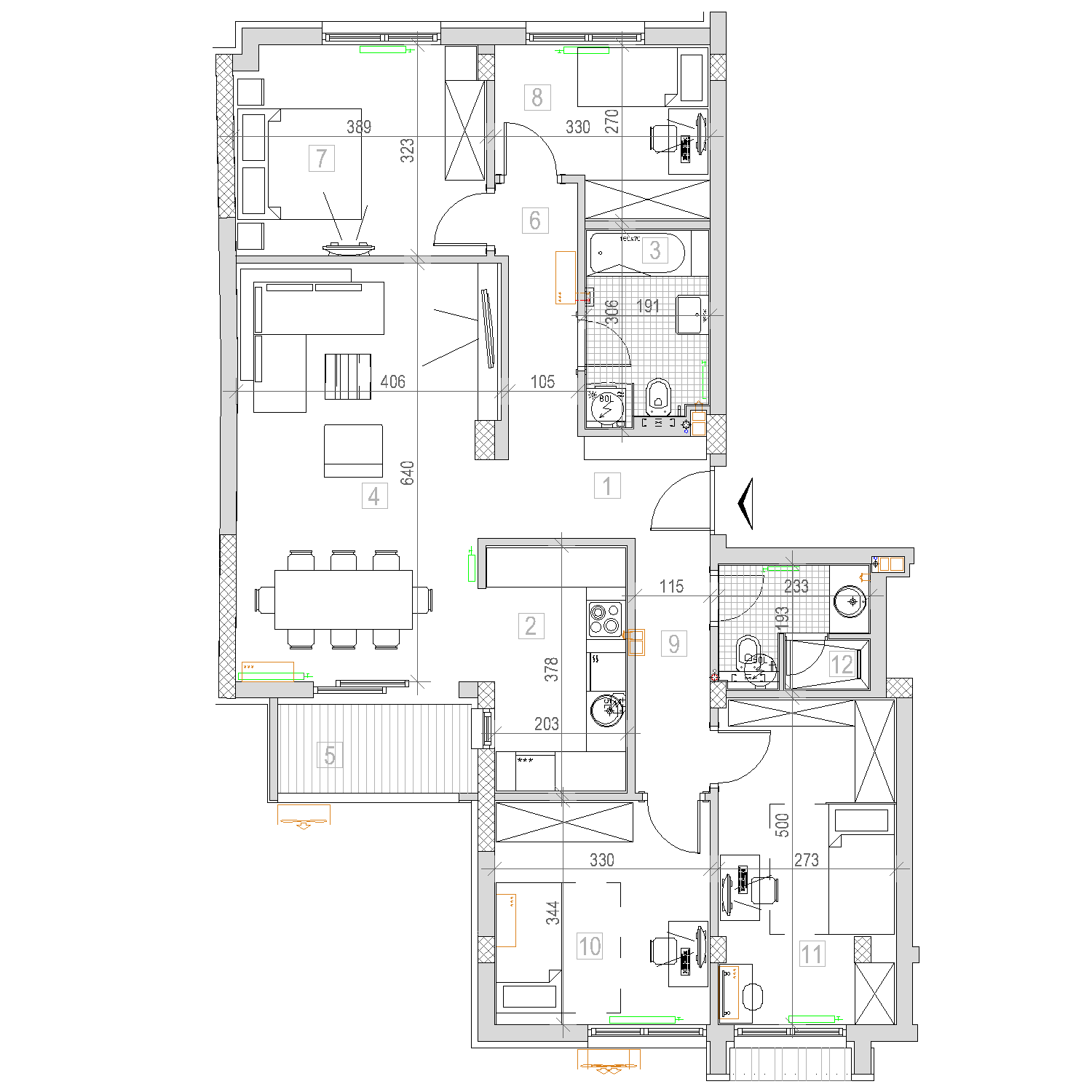
Br. Prostorija Površina / m2
1 ULAZ 5,31
2 KUHINJA 7,95
3 KUPATILO 5,59
4 DN.SOBA 24,80
5 LOĐA 4,01
6 DEGAŽMAN 4,30
7 SP. SOBA 12,25
8 SP. SOBA 7,94
9 GAŽMAN 4,46
10 SP.SOBA 11,32
11 SP. SOBA 13,32
12 KUPATILO 4,48
Zbirna kvadratura jedinice
105.73m2
Pozicija unutar objekta
Dvostrana orijentacija

Osnova jedinice

C
CENA
KONTAKT
K
Kupovina
Dodatna dokumentacija
Dokument
Link
