
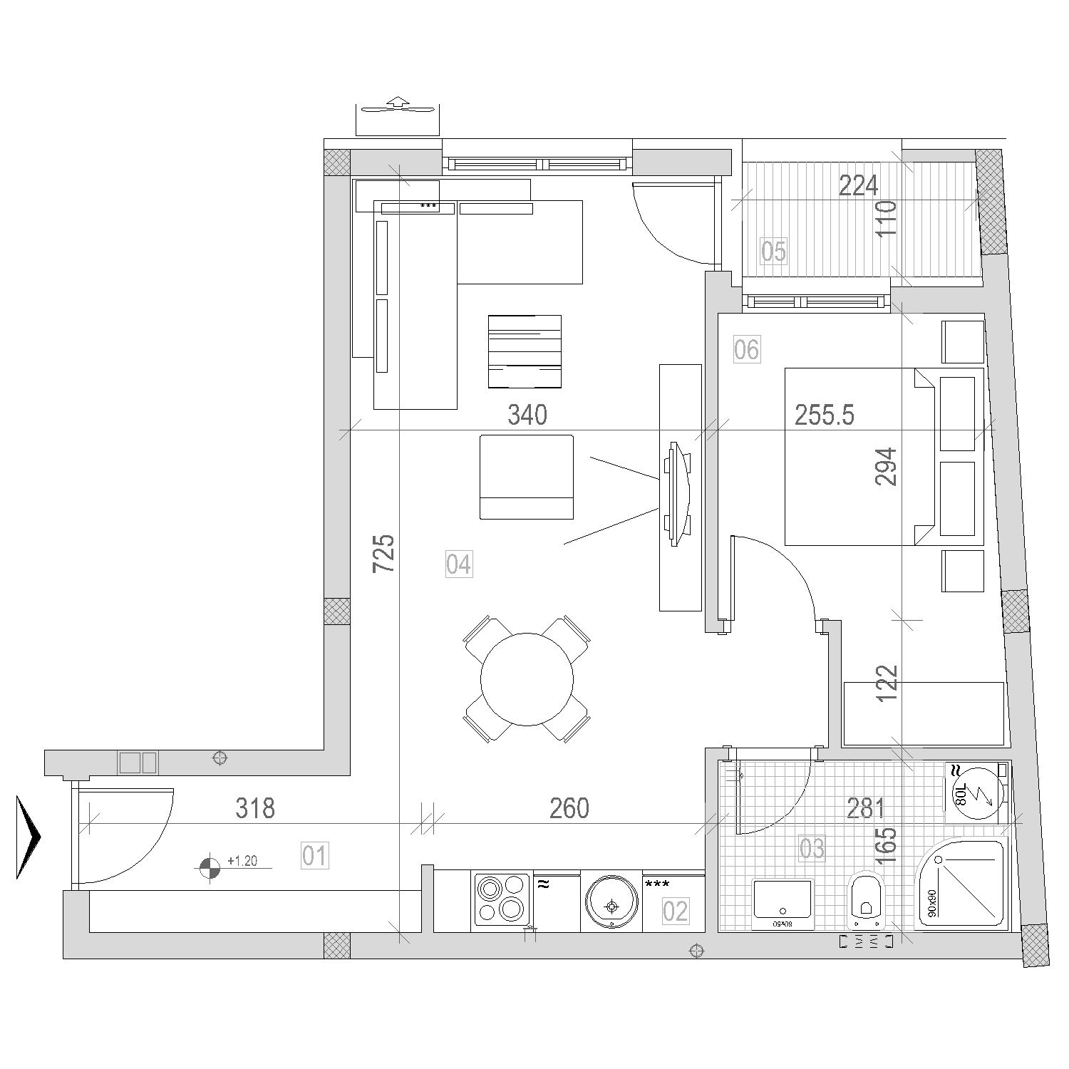
Pozicija
PRIZEMLJE
Dvosoban
Br. Prostorija Površina / m2
01 ULAZ 3,57
02 KUHINJA 1,64
03 KUPATILO 4,63
04 DNEVNA SOBA 22,88
05 LOĐA 2,50
06 SPAVAĆA SOBA 9,70
07 DEGAŽMAN 1,28
Zbirna kvadratura jedinice
46,20m2
Pozicija unutar objekta
Dvorišna orijentacija

Osnova jedinice

C
CENA
KONTAKT
K
Kupovina
Dodatna dokumentacija
Dokument
Link
